Seudónimo: MNBA_186

Autores
Arq. Diego Arraigada
Arq. Leonardo Rota

Colaboradores
Arq. Paula Pasquinelli
Manuel Ventura
Leonardo Conti
Franco Brachetta
Ezequiel Dalorso
Hernan Parodi
Martin Slobochzian
Juan Ignacio Traina
Bruno Arduino Wolf

Procedencia
Santa Fe

MEMORIA DESCRIPTIVA

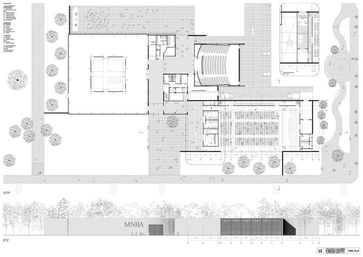
Entorno Urbano y del Parque / Edificio Original
La propuesta prioriza el entendimiento del aspecto urbano del desafío proyectual, encontrando el lugar optimo para la misma a lo largo de la Calle Bartolomé Mitre, alargando y mejorando la impronta de la fachada principal del edificio y evitando a la vez en el nuevo Auditorio el problema de la contaminación sonora proveniente del Tren del Valle que atraviesa el parque.

Ampliación / Volumetría / Estructura
La ampliación se concibe como una iteración más de las lógicas proyectuales ya existentes en el edificio original de Mario Roberto Álvarez. Entendiendo el mismo como una estructura de tres partes (Salas, Distribuidor-Servicios y el Auditorio como un Plug-in) la nueva ampliación se piensa como un nuevo plug-in que se también se relaciona con el distribuidor central y extiende el edificio original sin cambiar su naturaleza. Del mismo modo la volumetría copia con exactitud la altura del edificio original y repite su sensibilidad formal planar, extendiendo sus muros con una lógica neo-plástica que evita los diedros y aliviana visualmente todo el conjunto. Hacia el oeste el plano de fachada se continua un poco más allá de volumen, relacionándolo con el mismo recurso que utiliza el museo, mientras que hacia el este se continúan los dos planos longitudinales del auditorio (recurso también utilizado por el auditorio original, que acentúa su condición de plug-in) Sobre la Bartolomé Mitre, el plano de fachada se abre también, dando lugar a un gran vidriado que permite relacionar la sala con el parque y la ciudad. Estructuralmente la nueva ampliación continúa con la utilización de una estructura metálica, que cubre la gran luz de la sala y permite una construcción rápida y en seco que minimiza las incomodidades de obra para permitir el funcionamiento del museo durante la misma. Materialmente el nuevo edificio se distingue sutilmente del original, con planos vidriados y panelerías de fachada más grandes y con tensión vertical, en un calibrado ajuste hacia la abstracción.

Accesos / Circulaciones y Vinculaciones
Un aspecto importante de ampliar el edificio original es adecuarse a su sistema de accesos y circulaciones generales. En tal sentido se priorizó la posibilidad de acceder al mismo tanto desde la explanada de acceso del museo, utilizando la misma como lugar de reunión previo a un evento de gran afluencia de público. A su vez, el foyer conecta interiormente con el hall de museo y permite su conexión interior; esto se logra reubicando la zona de depósito de obras y ordenando la carga y descarga tanto del museo como de la nueva Sala. Hacia el norte el bar extiende su piso hasta transformarlo en el espacio exterior para eventos culturales, que mira al parque y está protegido de viento oeste por la misma fachada del edificio original. Como accesos secundarios, se mantiene un acceso de servicio/personal al museo desde el estacionamiento y se plantea un acceso directo desde el exterior a los nuevos camarines.

Sala de Convenciones / Auditorio
La sala de convenciones es un gran espacio regular y flexible, al cual se accede por dos grandes puertas desde el Foyer. Opuesto a estas puertas se ubica el gran escenario, detrás del cual se sitúan los camarines y sala de montaje y deposito del escenario. Hacia el sur el muro de la sala se hace transparente y se vincula con sector verde de árboles y arbustos autóctonos y la ciudad más allá. Una gran cortina telón que se recoge verticalmente permite controlar la luz proveniente de este vidriado y oscurecerlo totalmente en caso de ser necesario. Un cielorraso consistente en una serie de bóvedas convexas micro perforadas mejora el comportamiento acústico, así como oculta la estructura de vigas reticuladas y las infraestructuras de acondicionamiento y de aire, sprinklers e iluminación. Las sillas del auditorio se organizan con un sector de butacas retractiles y otro con sillas de quita y pon. De este modo se garantiza una utilización clásica de auditorio para más de 600 personas, así como otras configuraciones de butacas o incluso la posibilidad de contar con un espacio totalmente libre. Esto se logra gracias un depósito de butacas ubicado longitudinalmente a la sala. Sobre este depósito además corren las infraestructuras principales y se coloca una pasarela que permite vincular la cabina de control con una pasarela técnica detrás de escenario con acceso a mecanismos de escenografía, iluminación y audio, así como depósitos y camarines.

Sustentabilidad
A partir de la confección del Climograma de Givoni para la ciudad de Neuquén, se concluye que la temperatura de confort se logra generalmente en los meses más cálidos, excediéndose levemente en verano, y susceptible de ser lograda mediante ventilación natural o mecánica. En invierno la temperatura queda por debajo de la zona de confort. El diagrama muestra que si bien en ocasiones se puede requerir climatización tradicional, en la mayoría de los casos la misma puede ser lograda con la adecuada aislación de la ganancia interna y en días más fríos mediante la energía solar pasiva o activa.

Para el acondicionamiento del aire de la sala la propuesta contempla no sólo el eventual equipamiento con sistemas VRF y conductos de alta presión integrados a la arquitectura, sino también la posibilidad de utilizar las ventanas posteriores de la sala montaje y el patio de servicio en planta alta como generadores de una renovación de aire natural cruzada. Se propone para la sala la utilización de tecnologías de iluminación artificial de punta, basadas en rieles electrificados y proyectores LED de lentes intercambiables, que combinan máxima eficiencia y versatilidad. Se destina un sector significativo de la superficie de planta baja a terreno verde absorbente para favorecer el crecimiento de especies vegetales y colaborar en la reducción del efecto isla de calor urbano. Se incluye la implantación de un árbol autóctono en el acceso del edificio, no solo como una acción forestal, sino como una referencia que pone en valor la biodiversidad del territorio original. La gran cubierta recoge el agua de lluvia y la derivan hacia cisternas ubicada en cada extremo del edificio y permiten un aprovechamiento total del agua de lluvia que impacta sobre el lote. El sistema de almacenamiento y redistribución de agua de lluvias tiene el valor de poder ser utilizado a lo largo de todo el año como agua de riego, organizado según las necesidades estacionales, útil no sólo para el entorno inmediato del edificio sino también para el mantenimiento de los espacios verdes públicos cercanos. El agua recolectada en el extremo oeste del edificio en una cisterna ubicada en el patio de servicio se utilizara para las descargas de inodoros y mingitorios en los baños del nuevo edificio.

Conjunto / Sinergia final
Partiendo del análisis pormenorizado las condiciones del edificio existente y el fragmento urbano donde se inserta se ha ido arribando a cada una de las decisiones particulares del nuevo edificio, en un proceso de verificación continua las relaciones entre la propuesta, lo existente y su sinergia final. La propuesta se ha ido ajustando paulatinamente, resolviendo las restricciones existentes hasta llegar a una solución aparentemente sencilla, insertando cuidadosamente la ampliación para no competir con el museo existente ni tampoco subordinarse al mismo, sin mimetizarse ni contrastar, buscando una resolución final de conjunto equilibrada e íntegra, armoniosa entre todas sus partes.

Parque Central
La propuesta para el parque central comienza por un análisis pormenorizado de elementos existentes superfluos (solados, monolitos, carteleria, infraestructura, etc,) que se proponen desmantelar, dejando sólo los necesarios y priorizando las áreas verdes parquizadas. Sobre esta versión depurada del parque se ubica una nueva grilla conceptual que lo organiza y lo dota de una nueva filiación. La grilla propuesta propone generar equilibrio relacionando las distintas partes del parque adquiriendo una identidad de conjunto tomando las reglas de composición existentes en el neoplasticismo que persigue un equilibrio no simétrico, sino que encuentra su equilibrio trabajando la ubicación de cada elemento en el soporte bidimensional.
Se proponen dos elementos o acciones para trabajar la intervención del parque. En primer lugar, adicionando puentes peatonales para mantener el parque comunicado a pesar del servicio de trenes. Trabajar los límites de las vías con cuencas para la recolección del agua de lluvia para su posterior uso de riego. De esta forma se genera un límite menos presente en el horizonte del parque manteniendo la continuidad visual. Luego incorporando solados de 4 metros de ancho fijo por un largo variable para cada caso. Donde cada solado estará preparado para recibir una función específica. Estas funciones se clasifican en actividades deportivas, de recreación, relajación/descanso, de juegos y jardinería. Por ejemplo, el solado de los juegos para niños será de arena, en el caso de deportes de impacto de goma, etc. Estos solados estarán relacionados entre sí pudiendo generar circuitos que unifiquen las distintas manzanas.
Este abanico de propuestas programáticas está pensado buscando alentar a los visitantes y vecinos a adentrarse en el parque, de hacerlo propio.

CRÍTICA DEL JURADO

Se valora la ubicación de la nueva Sala Multipropósito en la esquina del Parque Central, para producir un atrio urbano capaz de absorber el actual acceso al MNBA. Desde esta operación formal, se resuelven ambos accesos y se unifica la propuesta.

La voluntad morfológica y material del edificio busca producir un proyecto sumamente austero que articula positivamente la propuesta con el Museo existente, equilibrando a este en altura y tomando alguno de sus recursos proyectuales. Sin embargo, se desestima la adición del plano murario perpendicular que excede la caja arquitectónica en la intersección de las calles Mitre y Tierra del Fuego.
Asimismo, se valora la decisión de permitir la apertura visual de la sala a la calle Mitre poniendo en relación las actividades culturales interiores con la ciudad.
La calidad espacial de los espacios interiores, tanto foyer como sala, es ponderada por este jurado, y se observa en ellos rigurosidad material y tecnológica.
El proyecto encuentra su mayor dificultad en la articulación funcional interior entre Foyer y Hall de Museo, producida a partir de un espacio poco definido en términos espaciales y programáticos, y de dimensiones exiguas. Asimismo, el área de carga y descarga se posiciona en un punto neurálgico del proyecto, inhabilitando mejores posibilidades de relación entre lo nuevo y lo preexistente. También los patios de maniobra y estacionamiento proponen una espalda en el proyecto que no favorece su relación con el parque central.

La propuesta para el parque se limita a unos diagramas conceptuales y una suerte de consideraciones preliminares para la elaboración de un programa, coincidiendo con los planteos conceptuales. Se considera como insuficientemente desarrolladas las ideas para el parque.

Compartilo en tus redes