Seudónimo: EMU9_778
MEMORIA DESCRIPTIVA
El proyecto para el espacio multipropósito U9 (EMU9), abarca un ambicioso y loable fin, refuncionalizar una antigua cárcel, dotándola de nuevas actividades y espacios colectivos, que inviertan la lógica original de espacio de reclusión por la de un espacio abierto a la comunidad. Esta decisión tomada por el conjunto de los actores que serán los usuarios finales del EMU9 representa la articulación de un programa amplio y complejo, que no solo debe resignificar a futuro el complejo sino que no debe permitir que se pierda la memoria de los hechos sucedidos en su interior y su historia.
Dentro de la propuesta se distinguen 2 ejes temáticos marcados, los espacios cubiertos, administrativos, culturales, de la memoria y de emprendedurismo por un lado y los espacios descubiertos, deportivos, recreativos, culturales y contemplativos que conforman el parque urbano por otro.
Los nuevos cuerpos edilicios a incorporar se posicionan en el espacio entre los pabellones citados anteriormente, tomando exactamente las líneas de borde de los mismos para darle limite a los nuevos volúmenes. No existe ningún elemento volumétrico-material que trascienda la silueta de construcciones existentes (preservadas o demolidas).
Hacia la derecha del cuerpo central existente, un gran techo semi cubierto de dimensiones equivalentes a lo que hubiera sido el edificio demolido -perteneciente al proyecto original- se posiciona para generar el acceso principal desde una plaza pública. De esta manera se equilibra la composición axial original (desvirtuada por la demolición del cuerpo lateral) sobre la huella del edificio ausente, activando la memoria del usuario para la interpretación histórica del sitio.
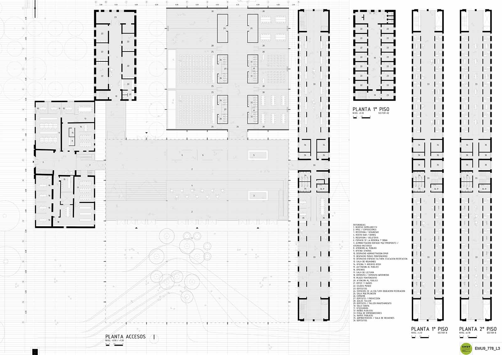
Funcionalmente, el proyecto se desarrolla sobre un espacio multidisciplinar común coincidente con el eje compositivo del conjunto, jerarquizando el sistema axial que prima desde sus orígenes y haciendo un uso integral de las diferencias de niveles existentes a favor de la integración de todas las partes. Dentro de los edificios existentes originales se alojan los espacios administrativos, de museo y archivo, mientras que en el edificio existente correspondiente al sector B se ubica la feria de emprendedores.
La relación entre los edificios nuevos y los existentes se produce mediante un vacío intersticial que conforma patios entre ambos. La relación funcional a través de circulaciones interiores se materializa en lugares puntuales.
Esta estrategia de vacío y contacto físico puntual, posibilita la reversibilidad total de los nuevos volúmenes edilicios, y mantiene la percepción completa de los edificios originales en todo su frente.
Además de la diferenciación entre nuevo y antiguo, dada por la independencia de los nuevos edificios que genera el vacío intersticial, la materialización del proyecto se realiza con una estructura y cubierta metálica, que contrasta formalmente con la masa muraría de los edificios existentes, proponiendo un nuevo lenguaje material en el predio.
La estrategia de intervención sobre el parque urbano, se estructura a través de una operación topográfica materializada a través de un solado que atraviesa en sentido este-oeste el predio, concentrando en una única superficie el soporte para diversas actividades, recreativas, deportivas y culturales tales como anfiteatro, skate park, ferias y diferentes actividades que requieren de funciones oblicuas. Al mismo tiempo esta operación topográfica organiza al resto del parque en dos grandes sectores. Un sector deportivo y recreativo en la cota mayor, y un sector contemplativo en la inferior donde conviven espacios de la memoria, juegos infantiles, gimnasios. bancos, etc. Ambos sectores no solo se vinculan a través del solado topográfico, sino que es posible recorrerlo sin interrupciones a través de un circuito aeróbico.
Sobre el perímetro del predio, se conserva en gran porcentaje el muro de hormigón, realizando intervenciones puntuales para la integración del proyecto a la trama urbana. Una gran apertura se realiza en el frente, sobre la calle Entre Ríos, con el objetivo de abrir el predio recuperando algunas vistas desde la ciudad, equivalentes a las que el Ing. Massini hubiera imaginado en su proyecto original, donde no contemplaba la construcción de un muro de seguridad. Esta operación permite la creación de un jardín intramuros, un nuevo oasis urbano resguardado, donde una nueva forestación busca generar un microclima tendiente a atraer fauna autóctona. Es posible recorrer el muro por su perímetro a través de una nueva pasarela que permite una visión aerea del EMU9.
Tendiente a la creación de un nuevo microclima se incorporan diferentes cuerpos de agua superficial, reservorios filtrantres dinámicos que retienen el agua por tiempos determinados generando humedad relativa en el parque. A su vez el mantenimiento diario del parque se realiza mediante sistemas de riegos artificial provenientes de bombeo y de la reutilización de agua de lluvia.
El parque fue ponderado desde el enfoque sustentable, recurriendo al uso de especies nativas. Este gesto es garantía de austeridad debido a que las mismas requieren menores esfuerzos para subsistir y esto se traduce en economía de recursos (agua, nutrientes, reposición). Además, el uso de flora autóctona representa el puntapié inicial de la reconstitución de los ecosistemas nativos dado que la flora convoca a la fauna también nativa. Las especies seleccionadas fueron:
• Sauce criollo Sal&humboldtiana
• Maitén Maytenusboaria
• Ñire Nothofagusantartica
• Raulí Nothofagus alpina
• Aguaribay Schinus molle
• Notro Embotriumcoccineum
(También utilizamos otras especies no nativas: Manzano japonés Malusfloribunda, Ajo Alliumsp. y Lavanda Lavanduladentata).
Dentro de la fauna convocada por los árboles y arbustos nativos podemos mencionar: aves como el Pudú (Pudupuda), Paloma araucana (Patagioenas araucana), Fiofío silbón (Elaeniaalbiceps), Cachaña austral (Enicognatusferrugineus), Comesebo (Phrygicuspatagonicus), Garza mora (Ardeacocoi), Gavilán mixto (parabuteounicinctus), Cabecita negra (Spinamagellanica), Corbatita común (Sporophilacaerulescens) que los utilizan como alimento u hospedaje.
Los ejemplares arbóreos están distribuidos en franjas regulares que recorren el terreno en el
sentido oeste-este. Las ocho especies seleccionadas varían cada seis o doce metros a repetición no constante y exceden los límites del muro ignorándolo y extendiéndose hacia las veredas como si intentaran prolongarse incluso dentro de la ciudad.
En las franjas coincidentes con las zonas del estacionamiento se utilizaron árboles de hoja caduca para obtener espacios frescos en verano y cálidos en invierno. A su vez las franjas de Ajo Alliumsp. (importante cultivo de la región) y las de Lavanda Lavanduladentata, aparecen aromatizando el sitio y sirviendo de guía para no videntes.
Los patios internos y frente de edificio son recorridos por franjas forestadas con Manzano japonés Malusfloribunda, especie de copiosa floración que alude a otra gran producción local. A su vez tal densidad de forestación colabora con la formación de barreras cortavientos. Además, durante el otoño, el sitio presenta un viraje hacia los colores cálidos que lo hacen muy atractivo, incluso más que en otras épocas del año.
RECONOCIMIENTO DE ESTRUCTRAS DE VALOR SIGNIFICATIVO
En la lógica de la preservación de los elementos distintivos de la arquitectura carcelaria de valor significativo, se destacan en el predio las siguientes estructuras edilicias a preservar:
• Pabellones construidos en 1911 (Administración-ingreso y Primer pabellón de celdas).
• Pabellón principal de celdas de 4 niveles (construido a fines de la década del 60)
• Muro perimetral de Seguridad con sus garitas.
Los primeros de ellos, corresponden a lasconstrucciones más antiguas donde mejor se conserva la idea perteneciente al proyecto original del Ing. Massini: el cuerpo frontal sobre el eje de la calle Ministro J. González que domina la composición axial del predio, y el cuerpo lateral izquierdo, «mellizo» al que fuera demolido posteriormente (originalmente existieron dos cuerpos laterales a ambos lados del edificio de ingreso). El esquema tipológico original disponía el resto de los pabellones de manera radial, con centro en una rotonda central cubierta que se encontraba una vez traspasado el cuerpo central.
El otro pabellón que se sitúa transversal al eje del predio, pertenece a otro proyecto que priorizaba la lógica de crecimiento en pabellones de disposición paralela, todos transversales al eje principal. La contundencia formal de este cuerpo que destaca por las proporciones alargadas lo convierten en una pieza dominante en el sitio. Además, su localización sobre el eje y su métrica es coincidente con las lógicas generales del proyecto original del Ing. Massini.
Por último, el muro perimetral de seguridad es considerado una pieza fundamental en el reconocimiento de los elementos tipológicos de la arquitectura carcelaria. La condición de encierro, el duro límite entre interior y exterior del predio, junto con las pasarelas que lo componen cumpliendo con su visión panóptica, son condiciones propias del destino original del sitio. Recordemos también que el lugar fue un centro de detención y tortura, por lo que su no reconocimiento como estructura a preservar, sería borrar de la memoria a generaciones futuras su función original, transformando el predio en un gran falso escenario.
En el reconocimiento de estos elementos materiales se fundamentan las lógicas que dieron forma a la propuesta.









